Save
Ask
Tour
Hide
$649,900
1 Day On Site
4767 Lexem Drive Lot 22Georgetown Charter Township, MI 49426
For Sale|Single Family Residence|Active
4
Beds
3
Total Baths
3
Full Baths
2,624
SqFt
$248
/SqFt
2026
Built
Subdivision:
HIDDEN LAKES
County:
Ottawa
Call Now: 586-242-5838
Is this the listing for you? We can help make it yours.
586-242-5838



Save
Ask
Tour
Hide
Mortgage Calculator
Monthly Payment (Est.)
$2,965Calculator powered by Showcase IDX, a Constellation1 Company. Copyright ©2026 Information is deemed reliable but not guaranteed.
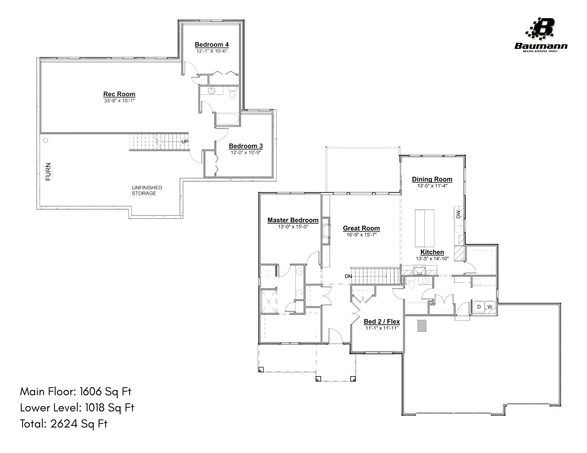
Discover the Baumann Building 'Thornapple' floor plan, a gorgeous ranch-style home being built in Hidden Lakes West. This 4-bedroom beauty features a stunning 12' ceiling great room, a chef-inspired kitchen, and a bright daylight lower level perfect for entertaining. Enjoy summer evenings on your composite deck and weekends exploring nearby Lake Michigan or Grand Rapids. Beautiful, modern, and perfectly located in Hudsonville, this home truly checks every box.Estimated completion of July
Save
Ask
Tour
Hide
Listing Snapshot
Price
$649,900
Days On Site
1 Day
Bedrooms
4
Inside Area (SqFt)
2,624 sqft
Total Baths
3
Full Baths
3
Partial Baths
N/A
Lot Size
0.39 Acres
Year Built
2026
MLS® Number
71026012680
Status
Active
Property Tax
N/A
HOA/Condo/Coop Fees
$10 monthly
Sq Ft Source
Plans
Friends & Family
Recent Activity
| yesterday | Listing first seen on site | |
| yesterday | Listing updated with changes from the MLS® |
General Features
Acres
0.39
Attached Garage
Yes
Cross Street
48th Ave and Baldwin St
Garage
Yes
Garage Spaces
3
Number Of Stories
1
Parking
AttachedGarage Door Opener
Property Condition
New ConstructionUnder Construction
Property Sub Type
Single Family Residence
Security
Carbon Monoxide Detector(s)Smoke Detector(s)
Sewer
Public Sewer
SqFt Above
1606
SqFt Below
1018
SqFt Total
3212
Style
Ranch
Water Source
Public
Interior Features
Appliances
Gas Water HeaterDishwasherMicrowaveRefrigeratorRange
Basement
Walk-Out AccessDaylight
Cooling
Central Air
Fireplace
Yes
Fireplace Features
Gas LogLiving Room
Fireplaces
1
Heating
Forced AirNatural Gas
Interior
Pantry
Laundry Features
Laundry RoomMain Level
Window Features
Insulated WindowsScreens
BathFull
Level - Lower
Save
Ask
Tour
Hide
Exterior Features
Construction Details
Vinyl Siding
Patio And Porch
DeckPorch
Roof
Shingle
Windows/Doors
Insulated WindowsScreens
Community Features
Association Dues
10
Financing Terms Available
CashConventionalFHAVA Loan
HOA Fee Frequency
Monthly
MLS Area
Area70131GeorgetownTwp
School District
Hudsonville
Schools
School District
Hudsonville
Elementary School
Unknown
Middle School
Unknown
High School
Unknown
Listing courtesy of West Edge Real Estate LLC: [email protected]
IDX provided courtesy of Realcomp II Ltd. via WestMichiganLakeshoreAssociationofREALTORS. Copyright © 2026 Realcomp II Ltd. Shareholders.
IDX information is provided exclusively for consumers' personal, non-commercial use and may not be used for any purpose other than to identify prospective properties consumers may be interested in purchasing and that the data is deemed reliable but not guaranteed accurate by the MLS.
IDX provided courtesy of Realcomp II Ltd. via WestMichiganLakeshoreAssociationofREALTORS. Copyright © 2026 Realcomp II Ltd. Shareholders.
IDX information is provided exclusively for consumers' personal, non-commercial use and may not be used for any purpose other than to identify prospective properties consumers may be interested in purchasing and that the data is deemed reliable but not guaranteed accurate by the MLS.
Neighborhood & Commute
Source: Walkscore
Save
Ask
Tour
Hide

Did you know? You can invite friends and family to your search. They can join your search, rate and discuss listings with you.