Lot #33 Alta Vista Alta Vista DriveHamburg Township, MI 48169




Mortgage Calculator
Monthly Payment (Est.)
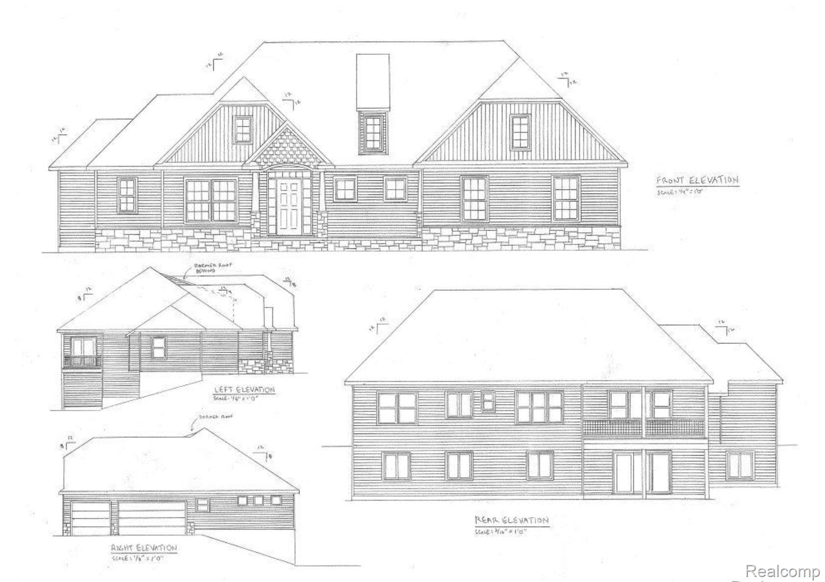
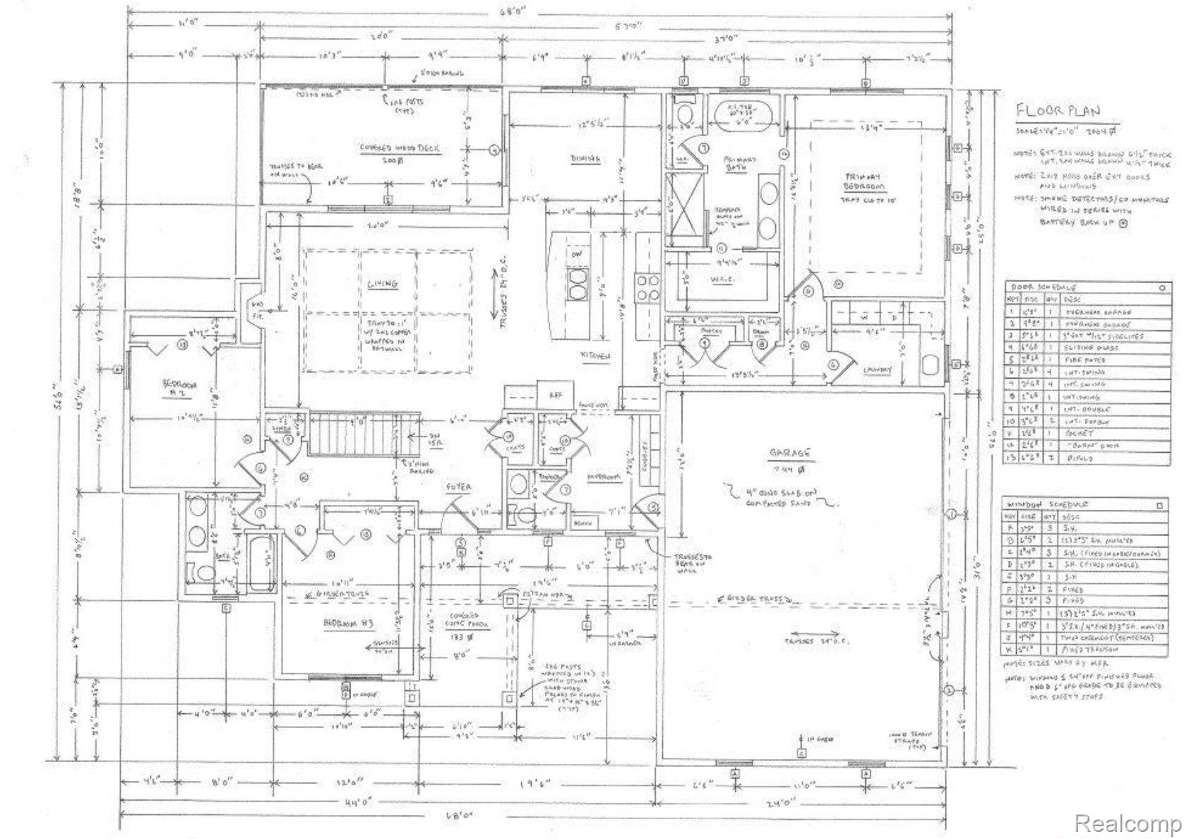
$3,608TO BE BUILT NEW CONSTRUCTION HOME***Live in Elegance & Privacy w/ an Up North Setting in Winans Woods! Hamburg's Most Prestigious Wooded Hideaway & Desirable Communities Nestled on a Wooded Lot w/ Mature Trees Among Beautiful Nature Walking Trails Throughout & Breathtaking Views of Nature! This Amazing Wooded Lot is 1 of 2 lots left to Build a New Construction Dream Home for you and your family.! Use this Split Ranch Floor Plan Fetured on This Listing~Bring Your Floor Plan or Paddock Home Builders will Design & Build your Energy Star Efficient Custom Dream Home!! Build Time is an average of 7-8 months. Visit Paddock Home Builders website for more information or if you have more questions, call the office. Paddock Home Builders has over 30-years of Experience in Building Custom Homes in the Livingston County Area. This 2100 SqFt. Split Ranch Plan~Energy Star Efficient Estate has 3 Spacious Bedrooms~2 1/2 Baths w/ Top of the Line High~End Finishes. Features: Gourmet Kitchen w/ Stunning Upgraded Cabinetry~Granite Counter Tops & Tiled Backsplash~Great Rm w/ Stone Gas Fireplace Shiplap Tray Cieling~Luxurious Private Master Suite w/Walk-in Closet~Tray Ceilings~ Barn Door~Soaking Tub w/Designer Tile in Master Shower~2 other Bedrooms & Main Bath~Laundry & Mud Rm***Other Features: 9-11 Ft Cielings~Luxury Plank Flooring Throughout~Wrought Iron Spindles~Beautiful Brick/Cement Board Siding~Wood Clad Windows~3 Car Garage~A/C~Upgraded Trim Package~Upgraded Insulation w/ 2X6 Exterior Walls~1 Yr Home Warranty~Make this Spectacular Dream Home Yours Today! SELLER HAS MULTIPLE PROPERTIES AVAILIABLE IN LIVINGTSON COUNTY! CALL FOR MOR INFORMATOIN. Agent is related to seller. Pictures on Listing are to Show Examples of Possible Finishings.
| 14 hours ago | Listing first seen on site | |
| 14 hours ago | Listing updated with changes from the MLS® |
IDX provided courtesy of Realcomp II Ltd. via RealcompIILtd. Copyright © 2026 Realcomp II Ltd. Shareholders.
IDX information is provided exclusively for consumers' personal, non-commercial use and may not be used for any purpose other than to identify prospective properties consumers may be interested in purchasing and that the data is deemed reliable but not guaranteed accurate by the MLS.

Did you know? You can invite friends and family to your search. They can join your search, rate and discuss listings with you.