331 DawsonMilford Charter Township, MI 48381


Mortgage Calculator
Monthly Payment (Est.)
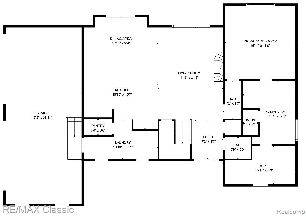
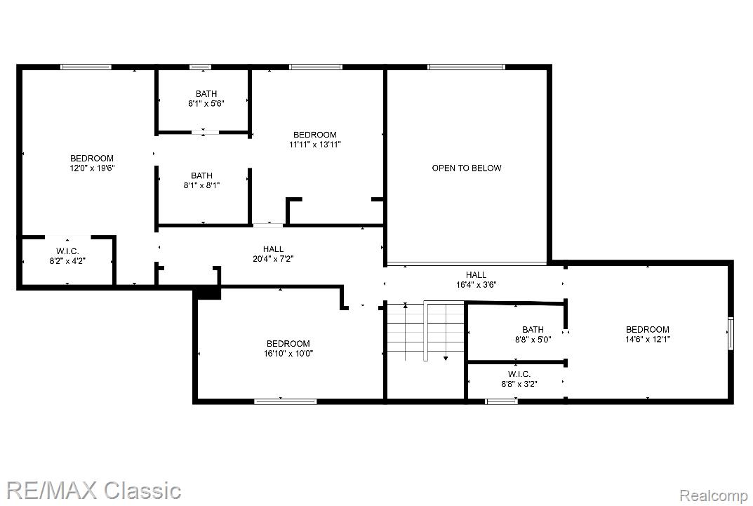
$4,4941st floor master on 2 Acres in Milford. Basement is in, Starting framing this week. Still time to to pick out all you interior & exterior colors and finishes. This 4 bedroom 3 1/2 bath this Craftsman style home has everything you need and more. Large 2 story foyer with big coat closet leads to the vaulted great room showcasing large windows looking to the woods and deer in the backyard, Natural gas Stone fireplace & wood floors open to the Kitchen & dining space with Granite Island, Walk in pantry, built in appliances & bay window. (optional coffee bar) 1st floor Master suite has a tray ceiling, full ceramic bath, 2 person shower with Euro glass, free standing tub, large dual vanities, custom walk in closet & toilet closet. Large laundry room with mud room boot bench & cubbies for storage. Stylish 1st floor guest Lav. Guest/Inlaw/Princess Suite upstairs with Private ceramic bath & walk in closet. the 2 other bedrooms are serviced by a triple Jack n Jill entry bath with separate large vanities. The oversized office room could also be used for a gaming, play or 5th bedroom. Other features include 8ft main floor interior doors, 9 ft basement prepped for a bath with daylight windows, a 4 car garage with 8 ft insulated doors with openers. high efficiency furnace & A/C, 200 amp electrical panel, Quick recovery water heater, Delta faucets, Andersen Windows, Huge covered front porch, Lifetime shingles, Easy access to freeway and downtown Milford. 3482 Cottage cove with deeded dock on Lake Ponemah available to purchase Others below Sold but available to walk through Ranch Stobart Milford, Ranch Bullard Hartland, Ranch Canal in Milford, Ranch Pine Bluffs Ct Highland Other lots available in Milford on Buttercup Trail 2-3 acres and surrounding areas call for details. Already have a lot? We can build on your lot, your plan or ours or we can customize one to fit your needs. 3D tours of previous built homes visit michiganhomebuilder Stone Hollow Properties.
| 22 hours ago | Listing first seen on site | |
| 22 hours ago | Listing updated with changes from the MLS® |
IDX provided courtesy of Realcomp II Ltd. via RealcompIILtd. Copyright © 2025 Realcomp II Ltd. Shareholders.
IDX information is provided exclusively for consumers' personal, non-commercial use and may not be used for any purpose other than to identify prospective properties consumers may be interested in purchasing and that the data is deemed reliable but not guaranteed accurate by the MLS.

Did you know? You can invite friends and family to your search. They can join your search, rate and discuss listings with you.