206 Eliot StreetDetroit City, MI 48201




Mortgage Calculator
Monthly Payment (Est.)
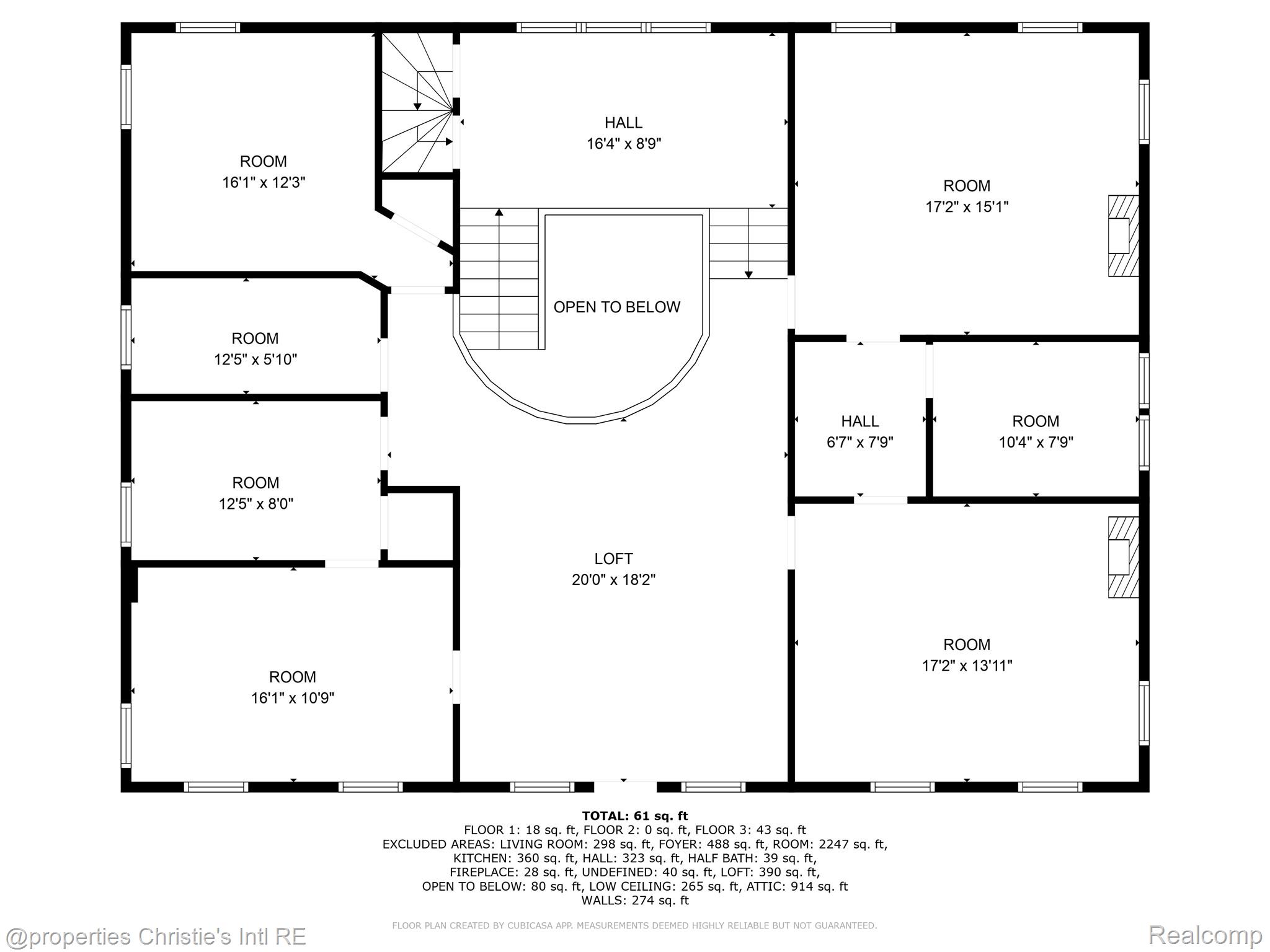
$4,562The Joseph F. Weber House is a hip-roofed, Colonial Revival-style. Neo-Georgian-inspired, 3 story, symmetrically-shaped red brick and grey stone trimmed structure, featuring two-story semi circular Ionic columned and dented portico which dominates the front facade. The brick water table, side facades and window surrounds are accented with limestone quoining. This home has historical significance of a turn of the century Detroit lumberman and real estate speculator. Joseph F. Weber: 1845 to 1935, began his career in 1863 selling cordwood to steam boats on the Detroit River. He opened a lumberyard and mill in Downtown Detroit in 1870, and later relocated his business to the edge of city limits. The building permit for the Weber House was issued on October 25, 1901 and the present wood columned, stone and limestone residence was completed in April 1903. Step into a piece of Detroit's history with this extraordinary turn-of-the-century residence, a rare opportunity for visionary buyers. This property is poised for a transformative revival into the 21st century. Whether you envision a magnificent single-family home or a dynamic mixed-use development, the potential is limited only by your imagination. Located in the heart of the historic Brush Park community, this is a chance to shape the future of one of Detroit's most coveted neighborhoods. This is an exclusive opportunity for serious parties ready to create a new legacy.
| 5 months ago | Status changed to Active | |
| 5 months ago | Listing updated with changes from the MLS® | |
| 5 months ago | Listing first seen on site |
IDX provided courtesy of Realcomp II Ltd. via RealcompIILtd. Copyright © 2025 Realcomp II Ltd. Shareholders.
IDX information is provided exclusively for consumers' personal, non-commercial use and may not be used for any purpose other than to identify prospective properties consumers may be interested in purchasing and that the data is deemed reliable but not guaranteed accurate by the MLS.

Did you know? You can invite friends and family to your search. They can join your search, rate and discuss listings with you.